fbpx
Please note WABi Systems are currently unable to accommodate any orders under 5 units.

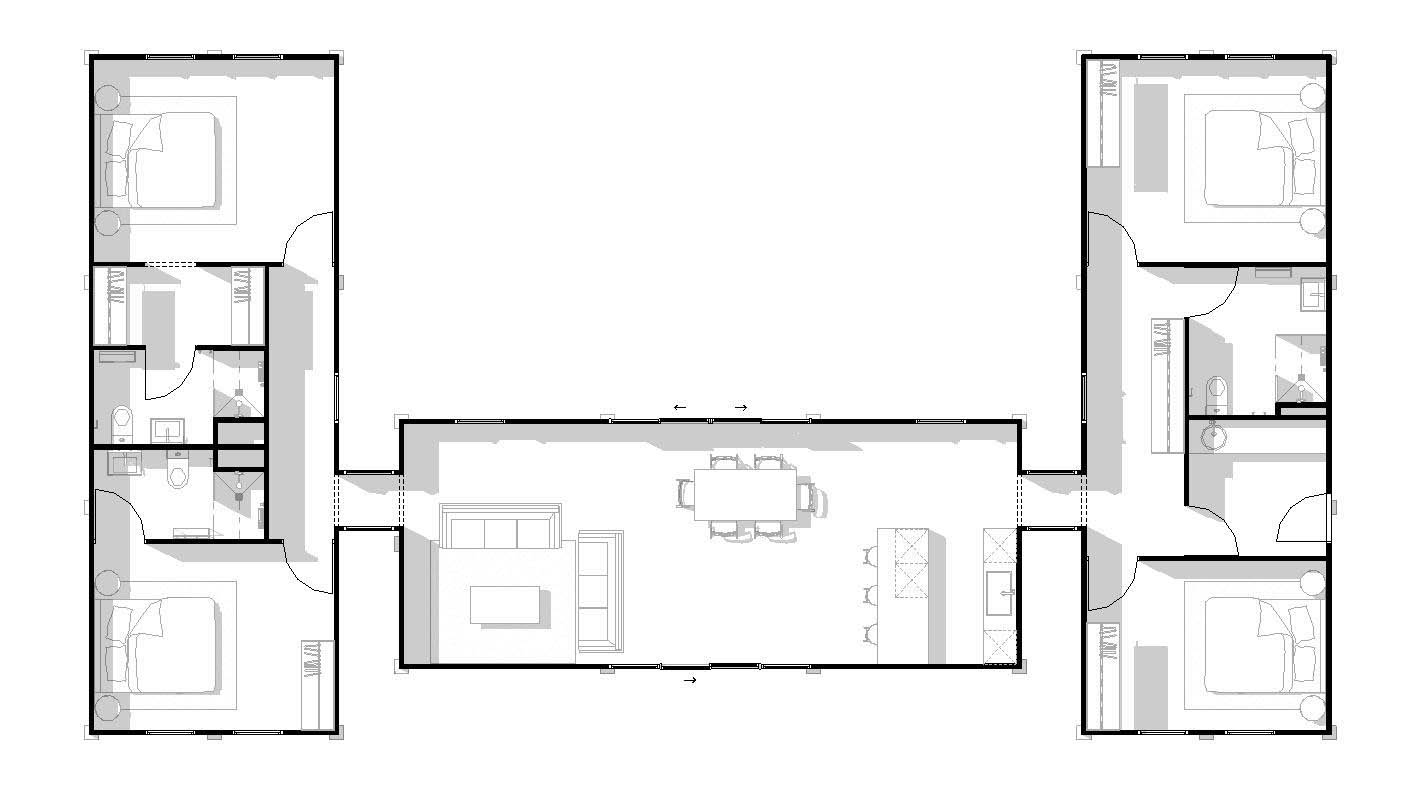
*Images are for illustrative purposes only.
Please refer to inclusions list for more details.
*Minimum Order 5 Units

4 Bed x 3 Bath (152m² Horizontal)

COLOUR VARIATIONS

Inclusions

*Prices are in AUD and exclude GST, sales tax, freight, installation.
*Deck is not included in supply price
*Geographical consideration of BAL Ratings, Wind Regions, Flood Zones, NATHERS Star Ratings, engineering and design specification changes; will have bearings on final costings.
*Add-ons/Upgrades are excluded from the supply price and must be added separately to the total cost.

  • CONSTRUCTION
    STANDARD

    • AUS / NZ NCC-compliant structure (local, state and national compliance)
    • Bulk insulation – R1.3 Anticon Roof Blanket, R4.1 Ceiling, R3.3 Wall Panels, R2.0 Sub Floor Insulation
    • BAL Low (Bushfire Attack Level) construction
    • Wind Region C (up to 238 km/h)

  • EXTERIOR
    STANDARD

    • Structural Galvanised Steel Frame Z350
    • 2700H WABi Insulated Wall Panels
    • Colorbond TRIMDEK Profile Roofing and accessories
    • Colorbond TRIMDEK Profile Wall Cladding OR 133mm Vertical Groove Cement Sheet Wall Cladding
    • 600 eaves with flashing as required

    UPGRADES

    • Lined soffit

  • EXTERIOR-ROOF
    STANDARD

    • Hot Dipped Galvanized structural steel
    • Skilion 5 degree pitch w/ Exposed eaves
    • COLORBOND® Trimdek roof cladding with flashing as required
    • Roofing blanket

    UPGRADES

    • Additional flashings
    • Lined soffit
    • Gutters
    • Downpipes
    • Additional awnings outside of the original design

  • INTERIOR
    STANDARD

    • 2700H WABi wall panels (client to batten, flush, paint or internally clad)
    • 10mm plasterboard ceiling (client to flush and paint)
    • Square edge cornice
    • 66 x11 timber skirting mold
    • CFC Cement Sheet Flooring

    UPGRADES

    • Polyfloor Mi Plank Vinyl plank flooring
    • Sliding Door Wardrobes

  • COMPOSITE DECKING
    STANDARD

    • BAL 29 Composite Decking Boards
    • Hot Dipped Galvanized structural steel

  • GLAZING
    STANDARD

    • Powder Coated Aluminum
    • Double Glazing
    • Fly screens
    • Standard lock and key

    UPGRADES

    • Low E glazing
    • Thermally broken profiles
    • Security mesh
    • BAL upgraded screens

  • BATHKIT
    STANDARD

    • Vinyl plank flooring
    • Full height cladded shower walls
    • Shower base
    • Fixed Shower glass
    • Wall faced toilet
    • 750 Wide Free standing Vanity with Open Shelf and 2 Soft Close Drawers
    • Chrome or matte black tapware and shower system
    • Hanging wall mirror
    • Chrome or matte black double towel rail and toilet roll holder

    UPGRADES

    • We are unable to change Bath Kit fixtures, fittings & materials.

  • FOUNDATION
    ECO ANCHORS 

    WABi’s recommended sub floor and stump footing option. Reduces the cost and environmental impact of traditional footings. Not included in the kit price, until a sales agent has confirmed they are suitable for your site.

  • ADD-ON'S
    • Kitchen as drawn
    • Stairs
    • Balustrade
    • Car Ports
    • Lift Kits
    • BAL Upgrade
    • Cyclone Upgrade
    • Marine Upgrade
  • EXCLUSIONS
    Labour, Electrical Components, Plumbing Components, Paint, Internal Wall Feature Cladding, Kitchens and Wardrobes (unless added in orders +5) as well as any additional items not listed in the “Inclusions”.

Discover More Floor Plans to Find Your Perfect Fit

wattle 2-4

Get In Touch

Give our friendly sales team a call or simply fill in the enquiry form below to let us know how we can assist you!

Let's Discuss Your Project

1 Project
2 Contact

Let's Discuss Your Project

1 Project
2 Contact

Eco cabins

Completed Projects

Wander Cabins
Completed Projects Tourism
Wander Cabins
Zambezi Lodge
Completed Projects Tourism
Zambezi Lodge
Completed Projects Tourism
Eco Beach Resort
Kununurra homes
Completed Projects Housing
Kununurra GROH Housing
Completed Projects Housing
Wala Kooral-bi
Completed Projects Tourism
Kangaroo Island
Remote Workers’ Accommodation
Completed Projects Workers Accommodation
Fremantle Display
Completed Projects Housing
Connecticut, USA
Completed Projects Tourism
Kailis Manor
Completed Projects Housing
Singleton